Row of Houses 1–52-Storey Terraced Homes
A five-unit terraced row house development with modern two-storey layouts. Each unit offers 4 rooms, 3 bedrooms, an integrated garage, and a generous balcony — delivering comfortable family living at 75.7 m² BRA-i per unit.

Unit Specifications
All five units share the same high-quality specification
| Unit | Rooms | Bedrooms | BRA-i | BRA-e (Garage) | Balkong / Terrace |
|---|---|---|---|---|---|
| Housing 1 | 4 | 3 | 75.7 m² | 25.7 m² | 13.2 m² |
| Housing 2 | 4 | 3 | 75.7 m² | 25.7 m² | 13.2 m² |
| Housing 3 | 4 | 3 | 75.7 m² | 25.7 m² | 13.2 m² |
| Housing 4 | 4 | 3 | 75.7 m² | 25.7 m² | 13.2 m² |
| Housing 5 | 4 | 3 | 75.7 m² | 25.7 m² | 13.2 m² |
Why This Design?
Smart, efficient terraced living for modern families
Integrated Garage
Each unit includes a private garage (25.7 m²) on the ground floor.
Spacious Balcony
13.2 m² balcony on the 2nd floor for outdoor dining and relaxation.
Efficient Layout
Open-plan kitchen, living, and dining on the 2nd floor maximises usable space.
Design Documents
Detailed architectural drawings for the row of houses

Row of Houses 1–5 — Overview
OverviewComplete overview of the row house development showing 1st and 2nd storey floor plans for all five units. Each unit features a garage, bedroom, and open-plan living area.
Highlights
- 5 terraced units
- 1st & 2nd storey plans
- Integrated garage
- Balcony on 2nd floor

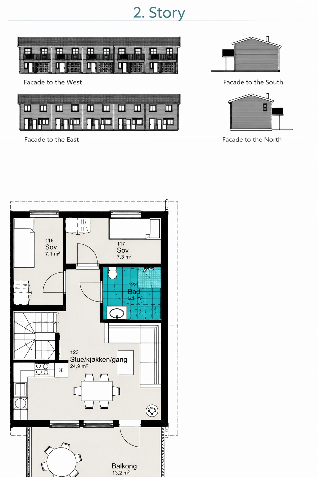
Housing 1 — Floor Plans & Facades
Housing 1Detailed floor plans and four-directional facade elevations for Housing 1. Includes 1st storey with garage and bedroom, plus 2nd storey with two bedrooms, bathroom, and open kitchen/living.
Highlights
- 4 rooms / 3 bedrooms
- BRA-i 75.7 m²
- BRA-e 25.7 m²
- Balkong 13.2 m²
